Descriptif
EXCLUSIVITE - AU COEUR DE FLEURIER - ENTIEREMENT RENOVE
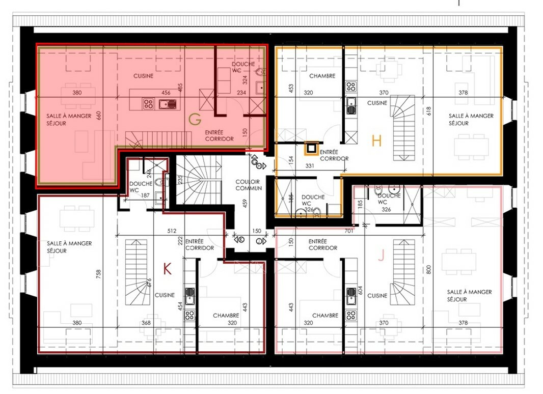
Lot G : Superbe appartement en duplex de 2,5 pièces (surface totale de 79 m2), situé aux 2ᵉ et 3ᵉ étages, entièrement rénové avec des matériaux de qualité.
Ce bien d’exception se distingue par une magnifique hauteur sous plafond et des poutres apparentes qui ajoutent du cachet à chaque espace.
Idéalement situé au cœur de Fleurier, il bénéficie d’un cadre agréable tout en étant à proximité immédiate des commodités, accessibles à pied.
Cette résidence allie harmonieusement le charme d’une maison de caractère datant du milieu du XVIIIe siècle (1760) et le confort moderne grâce à une rénovation complète du duplex réalisée en 2021.
Il est actuellement loué (détails sur demande).
Il se compose de la façon suivante :
1ER NIVEAU
- Hall d'entrée
- Cuisine agencée ouverte sur la pièce à vivre - belle hauteur sous-plafond et poutres apparentes
- Salle d'eau équipée d'une douche, d'un lavabo, d'un WC et d'une colonne de lavage
2EME NIVEAU
- Mezzanine ouverte
- 1 chambre
Possibilité d'acquérir en sus une place de parc extérieure (CHF 10'000.-).
Situation
Au coeur du village, l'appartement jouit d'un emplacement exceptionnel. Vous trouverez toutes les commodités nécessaires :
- Magasins d'alimentation
- Banques
- Boucheries
- Boulangeries / Tea-room
- Restaurants
- Pharmacies
- Permanence Volta - centre médical
- Opticien
- Diverses boutiques (bijouterie, magasins de jouets, magasin de vélos, etc.)
- Station-service
Commune
Le village de Fleurier fait partie de la commune de Val-de-Travers qui regroupe les villages de Noiraigue, Travers, Couvet, Môtiers, Boveresse, Fleurier, Buttes, Saint-Sulpice et Les Bayards.
Le Val-de-Travers bénéfice d’autres nombreux endroits touristiques, comme les célèbres Mines d’Asphalte, les musées et dégustations d’absinthe de la mythique fée verte, la station de Buttes-La Robella ouverte en hiver/été.
Vous trouverez dans cette région dynamique, Fleuron industriel horloger, un centre sportif « Espace Val » disposant d’une infrastructure sportive et piscine intérieure et extérieure, une patinoire artificielle ainsi que de nombreuses offres pour ses randonnées à pied, à vélo, via ferrata ou des activités sportives, culturelles et familiales et différentes sociétés.
Accès
Routes, bus et trains
Remarques
- Bâtiment construit en 1760 (ECAP 1904)
- 10 lots PPE dont un commerce au rez-de-chaussée (fleuriste)
- Chaudière à gaz installée en 2012
- Emission de chaleur par chauffage au sol
- Fenêtres PVC en triple vitrage
- Volets en aluminium
- Entrée principale avec interphone
- Local vélos /poussettes
- Local chaufferie/buanderie commune
Commodités
Environnement
- Village
- Commerces
- Banque
- Restaurant(s)
- Pharmacie
- Gare
- Arrêt de bus
- Crèche/garderie
- Ecole primaire
- Ecole secondaire
- Médecin
Extérieur
- Parking
Intérieur
- Sans ascenseur
- Cuisine ouverte
- Local à vélos
- Triple vitrage
- Lumineux
- Poutres apparentes
Equipement
- Cuisine avec îlot
- Lave-linge
- Sèche-linge
- Douche
- Interphone
Sol
- Carrelage
- Parquet
Etat
- Très bon
- Rénové
Exposition
- Est
Ensoleillement
- Favorable
Style
- Moderne
















