Descriptif
EXCLUSIVITE – GRAND VOLUME – RENOVATION
Situé dans la pittoresque commune de Vugelles-la-Mothe, cette bâtisse à rénover offre un important volume brut et laisse place à la créativité dans un cadre de vie paisible et une atmosphère conviviale.
Cette maison villageoise datant de 1854, est disposée sur 3 étages avec 2 balcons et 1 cave. Elle comprend également un petit appartement de 2 pièces avec entrée indépendante (libre de bail lors de la vente). De plus, elle dispose d’une grande grange rurale, offrant de nombreuses possibilités d’aménagement.
Les extérieurs se composent d’un garage, 3 places de parc et un jardin.
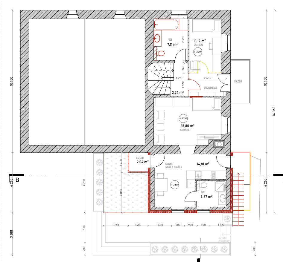
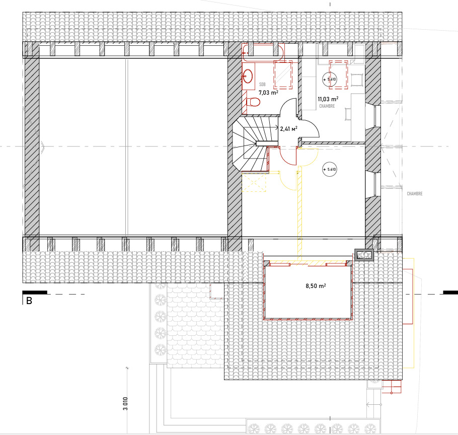
Le bien est non habitable en l’état et nécessite une rénovation complète. Toutefois, grâce au grand volume disponible, il se prête parfaitement à un nouveau projet de vie. Un projet de triplex sur plan a été réalisé par les propriétaires et le permis de construire a été octroyé en septembre 2025 (informations complémentaires sur demande).
Ce bien est idéal pour une personne qui désire créer sa propre habitation sur mesure tout en bénéficiant d’un potentiel rendement grâce à l’appartement indépendant.
Situation
La maison se situe à :
· 15 min. de Sainte-Croix
· 20 min. d’Yverdon-les-Bains
· 40 min. de Lausanne
Commune
Vugelles-la-Mothe est une commune du Jura-Nord vaudois d’environ 150 habitants située à 520 m d’altitude et à 9 km d’Yverdon-les-Bains. Cette petite commune se situe à seulement 9 minutes de l’autoroute.
La région offre de nombreux sentiers et routes pittoresques pour les amoureux de la nature que ce soit pour des randonnées ou pour des balades à vélos. Les chutes du Fontannet sont également un incontournable du coin.
Accès
Routes et bus
Transports
12x par jour (trajet direct) direction Vuiteboeuf
9x par jour (trajet direct) direction Yverdon-les-Bains
Construction
· Construction de 1854
· Cave
· Raccordement à la STEP
· Eau de source
· Désamiantage effectué
· 2 balcons
· Garage avec porte manuelle de 84 m3
· Pierre de taille sur la façade
· Entrée indépendante pour l’appartement de 2 pièces
· Actuellement pas de chauffage central
Commodités
Environnement
- Village
- Arrêt de bus
- Sentiers de randonnée
Extérieur
- Balcon(s)
- Jardin
- Garage
Intérieur
- Sans ascenseur
Etat
- A rénover
Style
- Rustique
Efficacité énergétique (CECB)
L'étiquette énergétique résulte de l'évaluation de la performance énergétique globale (chauffage, eau chaude sanitaire, éclairage et autres postes de consommation) et de la performance de l’enveloppe d'un bâtiment.


























