Descriptif
SPLENDIDE VUE - BORDURE DE ZONE AGRICOLE - A VENDRE SUR PLAN
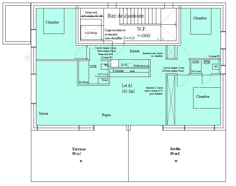
Magnifique appartement PPE neuf au rez-de-chaussée de 4.5 pièces d'une surface habitable de 105.3 m2 complété d'une terrasse de 30 m2 et d'un jardin exclusif de 30 m2 - lot A1, bâtiment Ouest.
La Résidence "Grand-Vue" à Bullet offre à ses habitants un cadre de vie idéal, au coeur de la nature, avec une vue panoramique entièrement dégagée sur la chaîne des Alpes et de la plaine.
Offrant les derniers standards de confort et de construction, une attention particulière est mise sur une réalisation écologique et à haute performance énergétique.
Ceci aura un impact direct sur les charges PPE qui seront très faibles grâce à une construction en ossature bois, une excellente isolation thermique, des panneaux photovoltaïques et une chaudière à bois déchiqueté communal.
Les aménagements seront prévus afin que tous les appartements disposent d'une terrasse ou d'un balcon. De plus, l'ascenseur dessert les différents étages y compris le parking souterrain.
Le lot A1 se distribue de la façon suivante :
- Hall d'entrée avec armoire
- Lumineuse pièce à vivre ouverte sur la cuisine agencée
- Terrasse de 30 m2 exposée Sud
- Jardin exclusif de 30 m2
- Suite parentale avec salle de douche
- 2 chambres
- Salle de bains
- Cave individuelle au sous-sol
Parking
Les 2 bâtiments seront reliés par un parking souterrain. Il disposera d'une porte d'accès principale télécommandée et de la pré-installation pour borne électrique.
- Parking souterrain : CHF 30'000.-/place
Finitions au gré du preneur
Les futurs propriétaires auront l'occasion de choisir les finitions intérieures (selon l'avancée du chantier).
Situation
Par sa situation privilégiée en bordure de zone agricole, les appartements bénéficient d'un cadre unique qui encourage la découverte des grands espaces à travers les pâturages et forêts environnantes dans une région touristique pleine de richesse
Bullet est une commune située sur le Canton de Vaud, plus précisement dans la région du Nord vaudois.
En voiture, la commune est située à :
- 5 minutes de Ste-Croix
- 25 minutes d'Yverdon-les-Bains
- 45 minutes de Neuchâtel
- 50 minutes de Lausanne
Commune
A Bullet, un commerce d'alimentation générale ainsi qu'un café-restaurant sont situés sur la commune.
De plus, vous trouverez à Ste-Croix toutes les commodités nécessaires (à moins de 5 kilomètres) :
- Commerces d'alimentation, boulangeries, tea-room, boucheries
- Banques, Poste
- Hôpital, pédiatre, médecins généralistes, dentiste, pharmacies, ostéopathe, opticien, hébergement médico-social
- Crèche, établissements scolaires primaire et secondaire, filière du CPNV
- Cinéma, musée, fitness, piscines, patinoire naturelle, tennis, mini-golf, centre sportif, terrain de football
- Station de ski aux Rasses, piste pour raquettes à neige et ski de fond, sentiers pour la randonnée
- Restaurants, buvettes et chalets d'alpage durant la période estivale
- Nombreuses sociétés locales (musique, football, volley-ball, gymnastique, danse, cirque, etc.)
Transports
Un arrêt de bus est situé à moins de 450 mètres de la résidence.
La société Travys dessert les villages suivants :
- Bullet, L'Auberson, Les Rasses et Mauborget toutes les 30 minutes
- Yverdon-les-Bains toutes les 30 minutes et Buttes (Val-de-Travers) 3 x par jour
Construction
Détails construction des 2 bâtiments (descriptif de construction sur demande) :
- Finitions au gré du preneur
- Construction en ossature bois + construction traditionnelle (béton) pour le sous-sol et le parking
- Parking souterrain avec porte d'accès principale télécommandée
- Panneaux solaires photovoltaïques
- Fenêtres PVC triple vitrage équipées de stores à lamelles
- Raccordement à la chaudière à bois déchiqueté communal, chauffage au sol
- Pré-installation pour borne électrique pour chaque place dans le garage
- Pré-installation pour colonne de lavage dans l'appartement
- Buanderie commune au sous-sol (uniquement séchage, pas de machine à laver)
- Armoire dans le hall d'entrée comprise
- Plus-value pour les armoires dans les chambres
Sous-sol
- Parking souterrain
- Caves individuelles
- Buanderie commune
- Local technique
- Abri PC
Rez-de-chaussée
Lot A1 - appartement de 4.5 pièces avec terrasse de 30 m2 et jardin exclusif de 30 m2 - CHF 730'000.-
1er niveau
Lot A2 - appartement de 2.5 pièces avec balcon de 10 m2 - Vendu
Lot A3 - appartement de 2.5 pièces avec balcon de 10 m2 - Vendu
Combles
Lot A4 - appartement de 2.5 pièces avec balcon de 10 m2 - Vendu
Lot A5 - appartement de 2.5 pièces avec balcon de 10 m2 - Réservé
Aménagements extérieurs
- 2 places visiteurs
- 1 place pour personnes à mobilité réduite
Particularités
- Livraison et transfert de propriété en automne 2025
- Type d'acquisition : vente à terme
- Résidence principale uniquement (résidence secondaire non-autorisée)
- Acompte de 20% lors de la signature chez le notaire
- Paiement du solde lors de la livraison des appartements (80% + frais d'achat)
- Pas de crédit de construction nécessaire
- Transfert de propriété lors de la remise des clés
Commodités
Environnement
- Village
- Verdoyant
- Commerces
- Arrêt de bus
- Ecole primaire
- Piste de ski
- Remontées mécaniques
- Piste ski de fond
- Sentiers de randonnée
- Médecin
Extérieur
- Terrasse(s)
- Silencieux/tranquille
- Verdure
- Parking
- Place(s) de parc visiteur(s)
Intérieur
- Ascenseur
- Parking souterrain
- Cuisine ouverte
- Cave
- Triple vitrage
- Lumineux
Equipement
- Cuisine agencée
- Buanderie collective
- Branchements pour colonne de lavage
- Fibre optique
- Borne voiture électrique
Sol
- A choix
Exposition
- Sud
Ensoleillement
- Optimal
Vue
- Panoramique
- Sans vis-à-vis
- Lac
- Alpes


















